Мы используем куки-файлы. Соглашение об использовании
Площадь60 м²
Этаж2 из 2
ПомещениеСвободно
Отчёт о привлекательности объектаУзнайте, насколько помещение и район подходят для вашего бизнеса
Что входит в отчёт
  • Охват населения
  • Пешеходный трафик
  • Автомобильный трафик
  • Средний бюджет семьи по району
  • Арендные ставки рядом
  • Точки притяжения
  • Конкуренты в радиусе 1 км
  • Рекомендации по выбору места для бизнеса
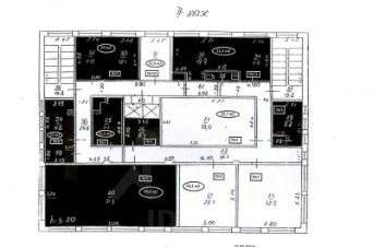
Арт. 20409904 Сдается помещение свободного назначение,адрес: МО г.Краснозаводск,ул.Строителей д.16 Всего 7 кабинетов в этом здании от 9,3кв.м. до 65,3кв.м. В данный момент свободно два помещения 28,8кв.м.и 32,5кв.м.,их можно объединить в одно,если вам это будет необходимо !!!(планировку прилагаю). Цена за 1кв.м от 500р.+К/У по счетчикам!!!+100% агентское вознаграждение при подписании договора!!! Якорный арендатор ,,Чижик,,!!! Прекрасно подойдут для небольшого магазина,массажного кабинета,пункта выдачи заказов,ателье,салона красоты и т.д. Для уточнения занятости помещений звоните !!!Свободная парковка возле здания!!!
lock

Войдите или зарегистрируйтесь
для просмотра информации

Просматривайте условия сделки и всю информацию об объекте
Сохраняйте фильтры в поиске и не вводите заново
Доступ к избранному с любого устройства
Неограниченное добавление в избранное
Позвоните автору
Вам ответят на все вопросы
Остались вопросы по объявлению?
Позвоните владельцу объявления и уточните необходимую информацию.
  • Инфраструктура
  • Похожие рядом
Помощь надёжных риелторов
Риелтор партнёр Циан поможет купить или продать любую недвижимость
15 785 ₽/мес.

Прямая аренда (от года), обеспечительный платёж 1000 ₽

208 $/мес.
177 /мес.
Цена за метр
3 157 ₽ в год
Налог
НДС включен: 2 846 ₽
Комиссия
100%
Коммунальные платежи
не включены
Эксплуатационные расходы
не включены
Агентство недвижимости
Документы проверены
Риелтор